Logo
  • Projekte
  • Themen
  • Teamkompetenz
  • Aktionen
  • Kontakt
  • Projektraum

Anerkennung Wettbewerb
in Erfurt


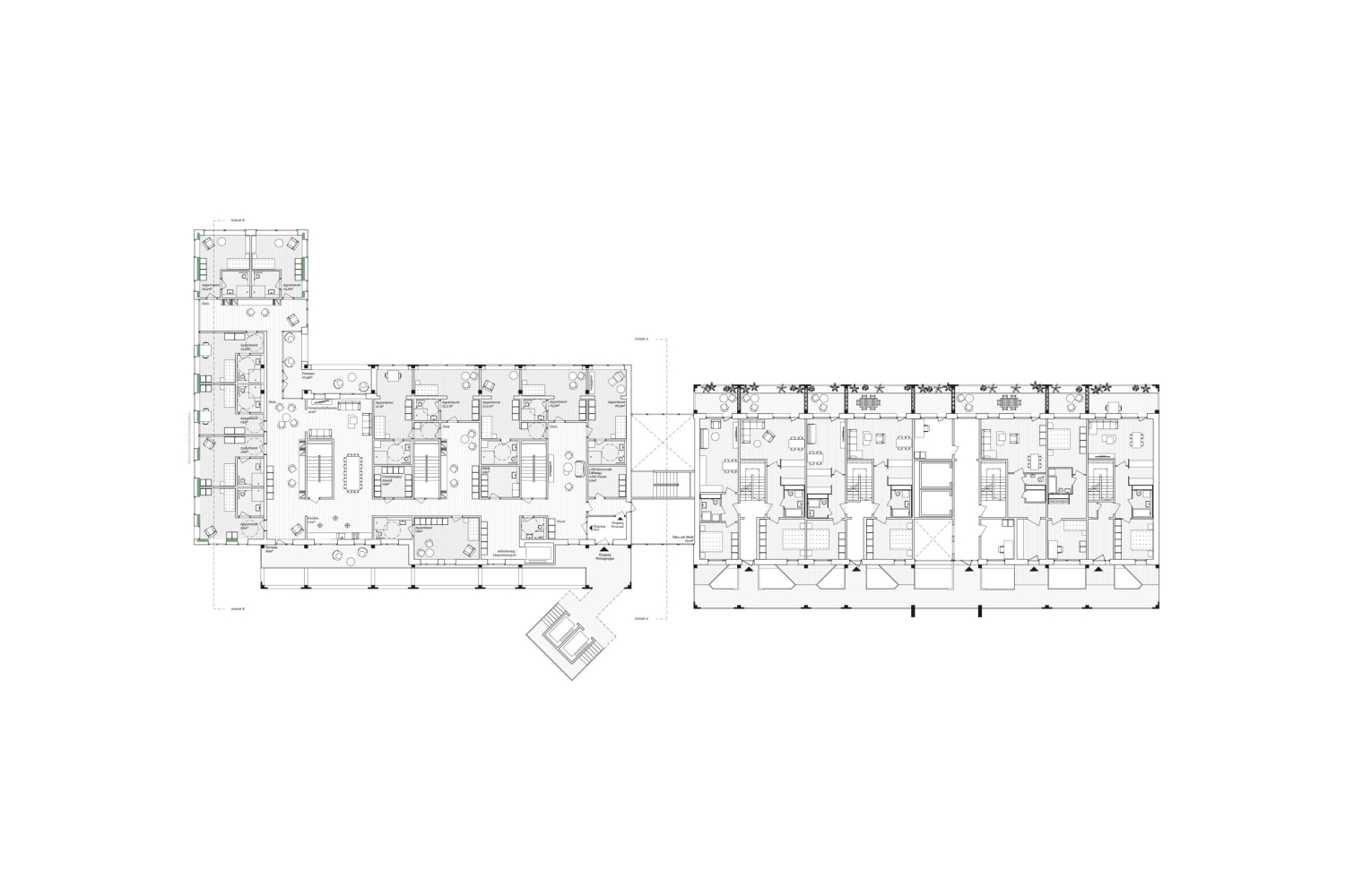
WBS70+

Das Entwurfskonzept transformiert das Typenhaus WBS70 in ein lebendiges und vielschichtiges Zentrum für Erfurts Herrenberg. Das herausragende und von weitem sichtbare Gebäude, wird saniert und zum neuen sozialen Treffpunkt für die Bewohner und das ganze umliegende Herrenberg-Quartier umgewandelt. Die neue Architektur organisiert verschiedene Öffentlichkeiten und gibt den Bewohnern einen Ort des Zusammenlebens. Die bisher anonyme Scheibe mit monotoner Lochfassade wird zu einem vielschichtigen Bauwerk welches sich als ausdifferenzierter Baukörper selbstbewusst präsentiert. Dabei werden verschiedene neue Elemente angefügt, welche den Bestandsbau brandschutztechnisch und nachhaltig aufrüsten und damit für Bewohner und Umwelt zu einem wertvollen und zukunftsfähigen Bau weiterentwickeln.

Das könnte Sie interessieren:


  • Neubau Schule und Hort „Am Eichenwald“
  • Wohnareal Böllberger Mühle
  • Mehrfamilienwohnhaus
  • Gertraudenfriedhof
  • Ministeriumscampus Angerkaserne

Impressum / Datenschutzerklärung Kontakt