Logo
  • Projekte
  • Themen
  • Teamkompetenz
  • Aktionen
  • Kontakt
  • Projektraum

Generationenwohnen – Mut zur Lücke II (Wettbewerb)
in Lutherstadt Wittenberg


„Der typische Landflüchtige sucht die Nähe zur Masse und all den Vorzügen der Innenstadt – er hat nur höllische Angst vor der depressiven Stimmung anonymer Hinterhöfe und der Bedrohlichkeit dunkler Gassen.“

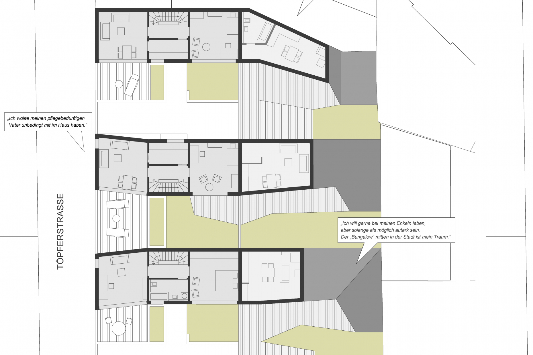
Die „gedrehte“ Anordnung der Wittenberger Hofhäuser bringt Licht in die Gasse und Sonne in die Wohnungen. Es entsteht rund um den „Vorderhof“ eine lebendige Nachbarschaft mit differenzierten gemeinschaftlichen und privaten Räumen nicht zuletzt unter Einbeziehung der Töpfergasse.

Vier Brüder – Sonniges Wohnen in der Altstadt

Die ortstypische Struktur aus hohem Vorderhauses und niedrigem Hinterhaus wird mit einer geformten neuen Interpretation an den Ort angepasst. Vier – vielleicht mit dem südlichen Nachbarn auch fünf – ähnliche Gebäude reagieren im Detail auf die Mikrosituation, erhalten durch die konsequente Südausrichtung sonnige Wohnungen und lassen Licht in die Gasse und vor allem auf die gegenüberliegende Bebauung.

Das Lebensgefühl Gasse und die unbestimmten Räume

Der Hof, das Gassenzimmer und die Hochterrassen beleben die Töpfergasse – jeder mit eigenem Charakter. Die Grundrisse sind an sich neutral angelegt. Der Nutzer kann entscheiden welche Nutzung er den Zimmern passend zu den individuellen Lebensumständen zuweist. Die Stadtbungalows in zweiter Reihe sind barrierefreie Hinterhäuser. Sie bieten abgeschirmten Raum für Singles oder Paare ohne Kinder. Für Senioren, aber auch denkbar für junge Menschen die stadtnah bleiben wollen.

Das könnte Sie interessieren:


  • Neubau Schule und Hort „Am Eichenwald“
  • Wohnareal Böllberger Mühle
  • Mehrfamilienwohnhaus
  • Gertraudenfriedhof
  • Ministeriumscampus Angerkaserne

Impressum / Datenschutzerklärung Kontakt